RÚA COLÓN, 31

2.600.000 €
Vigo, Pontevedra

Exclusivo Proyecto en el Corazón de Vigo: Vive o Invierte en Calle Colón 31

 

Tu lugar en la mejor zona de la ciudad, en el Km 0. Presentamos una oportunidad única en la Calle Colón 31, a solo unos pasos de la famosa Calle Príncipe y justo en frente de la Farola de Vigo. Estarás en el centro de todo: tiendas, cultura y servicios, en una zona que nunca pierde su valor.
Proyecto integral para pisos turísticos o viviendas con licencia aprobada para construcción.

Lo mejor de dos mundos: Historia y Modernidad. Esta propiedad es especial porque conserva sus hermosas fachadas originales, manteniendo ese encanto señorial típico de Vigo, pero se vende con el proyecto, con 1.732 m2 de superficie, ya aprobado para construir un interior totalmente nuevo y moderno. Esto significa que te ahorras largos trámites de diseño y permisos: ¡está listo para empezar a ejecutar!

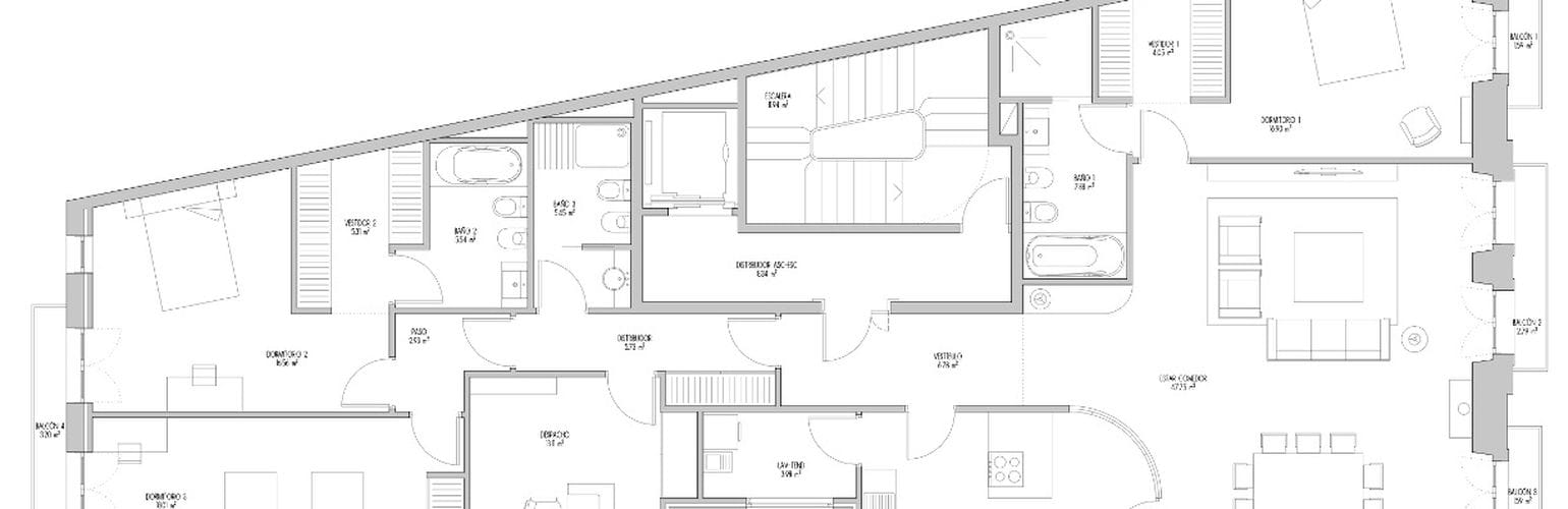
 El proyecto está diseñado para aprovechar al máximo el espacio, con una distribución cómoda y funcional de 5 alturas más bajo cubierta:

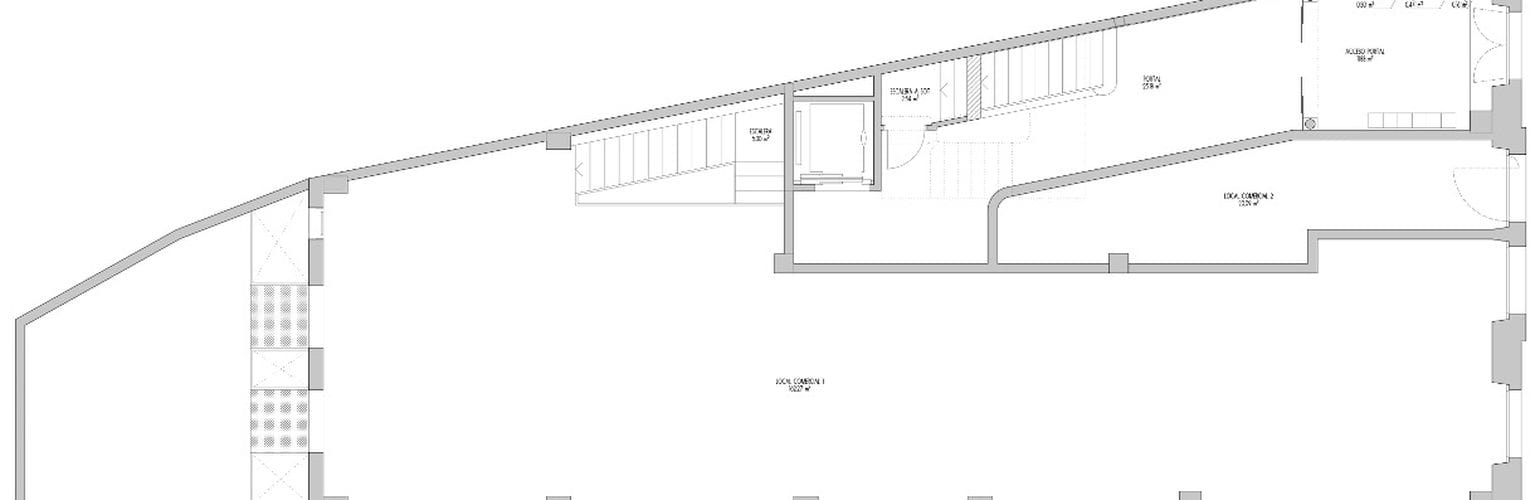
Planta Baja Comercial: Dos locales espaciosos a pie de calle, perfectos para montar un negocio rentable en una zona de mucho paso.
Viviendas Exclusivas (Plantas 1 a 4): Se han proyectado 4 pisos independientes (uno por planta). Esto garantiza mucha privacidad y luz natural para cada vecino.

El Gran Ático Dúplex: Gracias a la unión de la planta 5 y el bajo cubierta se puede construir una magnífica vivienda en dos alturas en esta planta, ideal para quien busca lujo y vistas al mar y sobre la ciudad.

Una inversión segura ya sea para desarrollar las viviendas y venderlas, o para alquilarlas, este edificio es una apuesta segura. La combinación de tener dos locales comerciales abajo y viviendas de alta calidad arriba asegura una rentabilidad excelente. Es la oportunidad perfecta para dar vida a un edificio emblemático con las comodidades del siglo XXI.

Cubre los datos de este formulario y un asesor de Isla de la Luz se pondrán en contacto contigo.
Código de verificación
También puedes contactar con nosotros en:
+34 605 324 219 isladelaluz@remax.es